
01 項目概況
該工程位于澳門氹仔島,是一座由扎哈建筑事務所設計,意在打造澳門新地標的高檔綜合酒店。該工程樓高154.8m,共43 層,幕墻面積約4.5萬㎡。其外視效果為:鋁板包覆的漸變受力網架骨骼在外,玻璃幕墻在內,樓體中間以流暢的曲面過渡出三個如寶石般的空洞(圖1)。這是全球首個采用自由形態外骨骼網架結構的摩天大樓,氣勢雄偉、堅如磐石地聳立于路氹城心臟地帶,其鏤空設計與屋頂、墻壁和天花板相融合,突破傳統也為城市建筑形象進行了一次饒有趣味的探索。其外觀造型如一件雕塑作品,大樓中央的鏤空部分以“8”字為設計概念,突顯結構的復雜性,以及復雜結構在流線下的優美。左右兩棟大樓的平臺和頂層相連,中心位置亦有兩道橋連接,即便身處室內也能感受到鏤空設計的特色。其外骨骼網狀鋼結構包圍著混凝土核心,突顯出該樓的獨特形態,另有五種不同玻璃面板以及雙曲鋁板來強化視覺效果,不僅賞心悅目,更減少了內部所需的結構物。
02 幕墻設計特點
(1) 漸變網架骨骼位于最外層,玻璃幕墻在網架骨骼內。
(2)層間與可視區采取分離安裝模式,做成不同的單元板塊。層間板塊與結構四點支撐, 可視板塊從室內安裝,卡入兩個層間板塊之間,坐立在下一層的層間板塊上。
(3)鋼結構牛腿處的層間單元板塊,設計成切分的半個板塊,在工地現場組合、固定、密封,并進行可靠的防水處理。
(4)轉角的小半徑彎弧板塊,首先控制好面板的精度,保證外觀可靠,不能出現任何波紋, 控制好拉彎型材和加工組裝的精度,確保其性能。
(5)中心曲面位置,全部屬于異形單元板塊,其中存在許多扭轉的單元板塊, 其所有面板需要做成扭轉彎曲的,其型材框為不共面的直線拼接。
03 大面單元幕墻技術分析
該工程結構網架在幕墻之外,主體鋼結構距離幕墻玻璃面僅400mm,單元體不能整體安裝,需要把單元體在高度方向上拆解為可視部位和層間部位兩塊單元,先安裝層間板塊,后安裝可視板塊,如圖2所示。

▲ 圖2 單元安裝流程示意
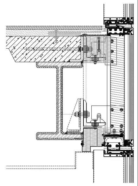
層間單元板塊設計
該設計采用四個掛點,確保其結構穩定可行,上橫梁與普通橫滑式單元幕墻一致,下橫梁設計兩道完整的密封線,如圖3所示。

▲ 圖3 層間剖面
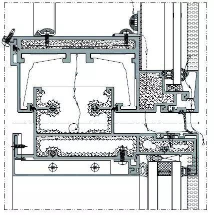
針對層間單元體標準位上節點,其設計特點是:可視板塊落在層間板塊上,注意左右限位,限位方式為立柱壁卡入橫梁上預設的缺口,左右預留2mm活動范圍,可視板塊能夠繞著支撐點活動,如圖4所示。

▲ 圖4 層間標準位上節點
針對層間單元體標準位下節點,其設計特點是:可視板塊的安裝在不需要安裝L碼的位置切除一段略大于L碼件的缺口,即圖中藍色標注部位;L碼塞入并滑移到所需要的位置(兩端+中間),兩端L碼起結構支撐,中間L碼為了防止密封片翹曲;卡入帶膠條的通長密封片,密封片之間打密封膠,形成連續的密封帶。如圖5所示。

▲ 圖5 層間標準位下節點
層間板塊設計中,牛腿處的板塊方案尤其重要。因為結構牛腿的預先存在,該板塊只能拆分成橫梁現場對接單元,且單元體與牛腿之間的防水現場安裝,注意確保可視板塊立柱位置有掛件,避免橫梁承受集中力,如圖6所示。

▲ 圖6 牛腿處節點及三維示意圖
可視單元體板塊設計
可視板塊下端坐立在層間板塊上,上端卡入層間板塊,自身無掛接點。因為室外有結構網架,所以只能室內更換玻璃,如圖7所示。該設計需要注意幾個重點:1)板塊通過卡槽左右限位;2)對于垂直于幕墻的扣板,一定需要機械防脫,避免臺風下扣板脫落。

▲ 圖7 可視板塊節點及三維示意圖
04 不規則單元系統技術解析
本項目中的不規則單元體,沒有一塊是相同的,故每一塊單元體都要放樣。為此,我們設計中運用了BIM模型來提高正確率和效率(圖8)。由于該項目角度太多,需要大量開模,為了減少開模數量,我們采取區域分段開模的方式:1)層間立柱和可視區立柱的夾角范圍為161°~180°的區域,每3°開一套系列模具;2)橫梁與室內地面的夾角范圍為82°~105°的區域,采用同一系列模具,在最小角度82°的位置,保證至少1°的向外傾斜以保證排水的有限性;3)橫梁與室內地面的夾角范圍為67°~82°及105°~110°的區域(圖9),每3°開一套系列模具,以保證橫梁之間的平穩過渡及其性能。

▲ 圖8 BIM 模型圖及安裝示意圖

▲ 圖9 橫梁極限上傾和下傾角度圖
05 框架系統技術解析
該框架系統,是以外骨骼網架為基礎的鋼框架龍骨小單元系統,最大跨度為寬8m×高12m,如圖10所示,其中淺藍色為可視板塊,深藍色為后面有結構板塊。鋼架的布置與優化是該系統的重點。以橫向龍骨為主受力龍骨,豎龍骨為次受力龍骨,在外層骨骼網架上伸出支撐點,把分格寬度縮減到8m×4.7m。對于細節部分,小單元45°拼接角的斷水設計是本工程必不可少的一個強制性措施,框架的設計理念如圖11—14所示。

▲ 圖10 框架三維圖

▲ 圖11 鋼架布置圖(1/4 區域)

▲ 圖12 高跨大樣圖

▲ 圖13 鋼框架單元體系統

▲ 圖14 三維示意圖
06 結語
該工程位于臺風區域,設計風壓為10kPa。因為其特殊地理位置,在設計和安裝控制上,要綜合對比美標、英標、國標、以及澳門本地法規,取其中最嚴格的要求條款。對于這個外觀充滿想象力、特別復雜的幕墻系統,我們從投標和設計開始就要分析其外觀和使用的可行性。在澳門夢幻城酒店D項目復雜的外立面設計中,所有設計和施工的出發點都是圍繞如何能完美地表達建筑師的設計,如何將外觀、性能和安裝結合在一起。在實際過程中,我們做了大量的PMU性能試驗,協調好設計和施工中的問題,最終取得了令人滿意的效果。
本文來源:建筑幕墻
作者:羅參錦

熱線
關注
置頂